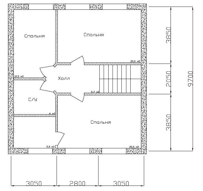
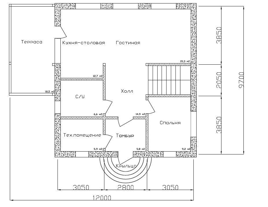
Закончили строительство крупного проекта, дом 177 м²
Раскошенный дом, а так же планировка, фото днем и ночью. Строительство выполнено в сроки. В подарок были окна и двери!
Строительство домов каркасных, каркасно-щитовых. Проекты. Цены в СПб. Строительство идеальных домов.
